Gewerbehof Freiberger Straße 112

Freiberger Straße 112 in 01159 Dresden

Der Gewerbehof befindet sich in unmittelbarer Nachbarschaft zum Gründer- und Gewerbezentrum Löbtauer Straße. Das Stadtzentrum ist ca. 2 km in östlicher Richtung. Bis zur Anschlussstelle Dresden-Altstadt der Bundesautobahn A4 sind es 4 km. Unmittelbar vor dem neuen Gebäude befindet sich eine Haltestelle der Straßenbahn (Linien 7 und 12). Die Zentralhaltestelle Kesselsdorfer Straße / Tharandter Straße ist ca. 250 m entfernt. Bis zur S-Bahnhaltestelle Freiberger Straße sind es ca. 800 m.

Der Inhalt eines Drittanbieters (OpenStreetMap) wird aufgrund Ihrer fehlenden Zustimmung zu Drittanbieter-Inhalten nicht angezeigt.

Klicken Sie hier um Ihre Einstellungen zu bearbeiten.

Gebäude

Lageplan
Lageplan

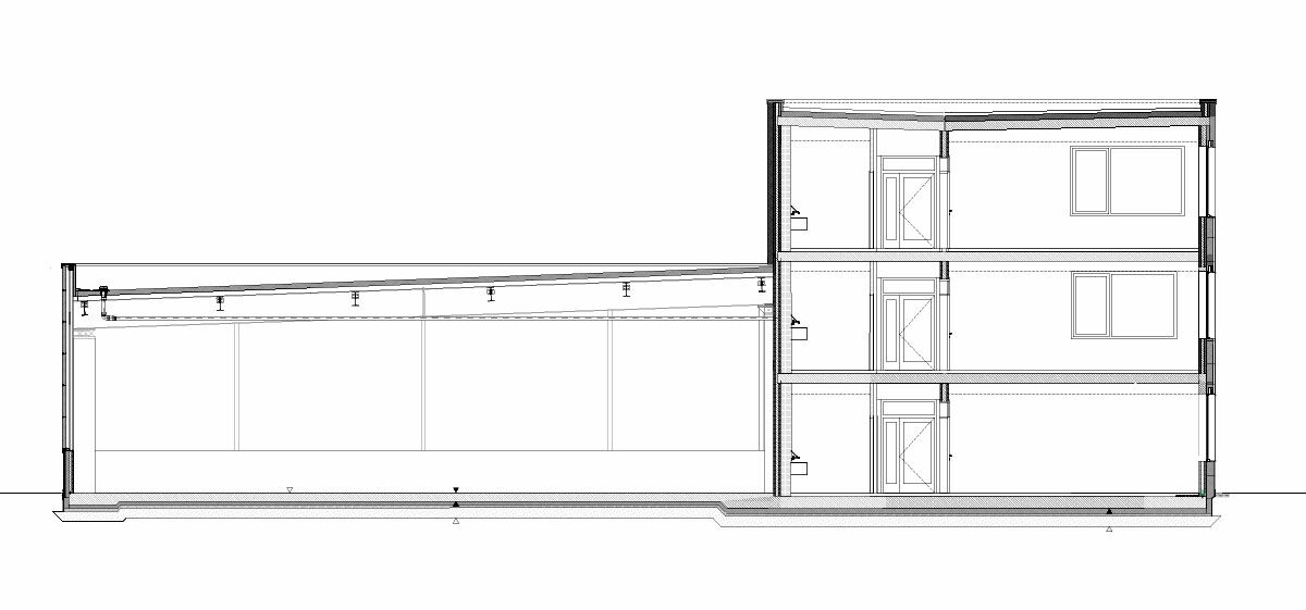
Das Gebäude besteht aus einem 3-geschossigem Kopfbau und einem rückseitig angebauten Hallenkomplex.
Alle Mietflächen sind für den Nutzerausbau medienseitig vorgerüstet und bieten ein Höchstmaß an Flexibilität. Im Kopfbau stehen komplett ausgebaute Miet-Sanitärzellen zur Verfügung. Der weitere nutzungsgerechte Ausbau der Mieträume erfolgt durch den Mieter. In jedem Hallenschiffen ist die Errichtung einer Sanitärzelle möglich. Das Gebäude ist barrierefrei nutzbar.

Mietflächen

Die Mietflächen im Kopfbau sind als Büro oder für büroähnliche, gewerbliche Nutzungen vorgesehen. Eine Aufteilung im 3,75m-Raster ist möglich. Im 1. und 2. OG stehen zudem unbelichtete Mietnebenflächen (z.B. für Serverräume, Archive, Teeküchen etc.) zur Verfügung.
Der eingeschossige Hallenanbau ist ca. 20 m tief und im Raster von 7,5m teilbar. Jede Halle kann mit einer Verbindungstür zum Kopfbau ausgestattet werden.

Kopfbau

Mietflächen: insgesamt ca. 1.750 m², teilbar bis ca. 24 m²
Raumhöhen: EG /1. OG ca. 3,10 m, 2. OG ca. 3,35 … 3,50 m
zul. Fußboden -/Deckenlasten: 500 kg/m²

Halle

Mietflächen: insgesamt 1.500 m², teilbar bis ca. 150 m²
Raumhöhen: lichte Tordurchfahrt 4,20 m, lichte Innenhöhe im Hallenschiff ca. 5,05 … 5,70 m
zul. Fußbodenlast: 1.500 kg/m²

Parkflächen

46 Stellplätze für PKW/Kleintransporter (mit Leerrohrtrasse für Elektroladestationen)
64 Fahrradstellplätze